Dzień 33. Fundamenty, a szkody górnicze (<222dni)
Data dodania: 2010-03-14
Dziś z uwagi na to, że to niedziela czas przeanalizować projekt pod kątem tego co będzie się działo w tym tygodniu (oczywiście jeśli pogoda pozwoli i ekipa budowlana nie zawiedzie).
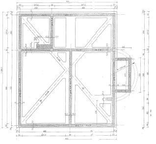
Rzut oka na fundamenty naszej Iskierki, które odróżniać ją będą już na początku od pozostałych Iskierek.

Zobaczymy jak w rzeczywistości będą się prezentować. Toż to prawie bunkier będzie :P
Komentarze